新築分譲住宅

Resort Season昭和町1期​〈2区画〉

群馬大学/前橋市役所/県庁/商業施設が徒歩圏内!日常生活に便利で、魅力的な住みやすい地域!


MAP

交通機関
前橋駅
2800m(車で9分)
教育機関
敷島小学校
290m(徒歩4分)
第三中学校
300m(徒歩4分)
商業施設
フレッセイクラシード若宮
1100m(徒歩14分)
フードマーケットカスミ前橋リリカ店
600m(徒歩8分)
セブンイレブン前橋昭和町1丁目店
250m(徒歩4分)
サンドラッグ前橋国領店
500m(徒歩7分)

プラン

Resort Season
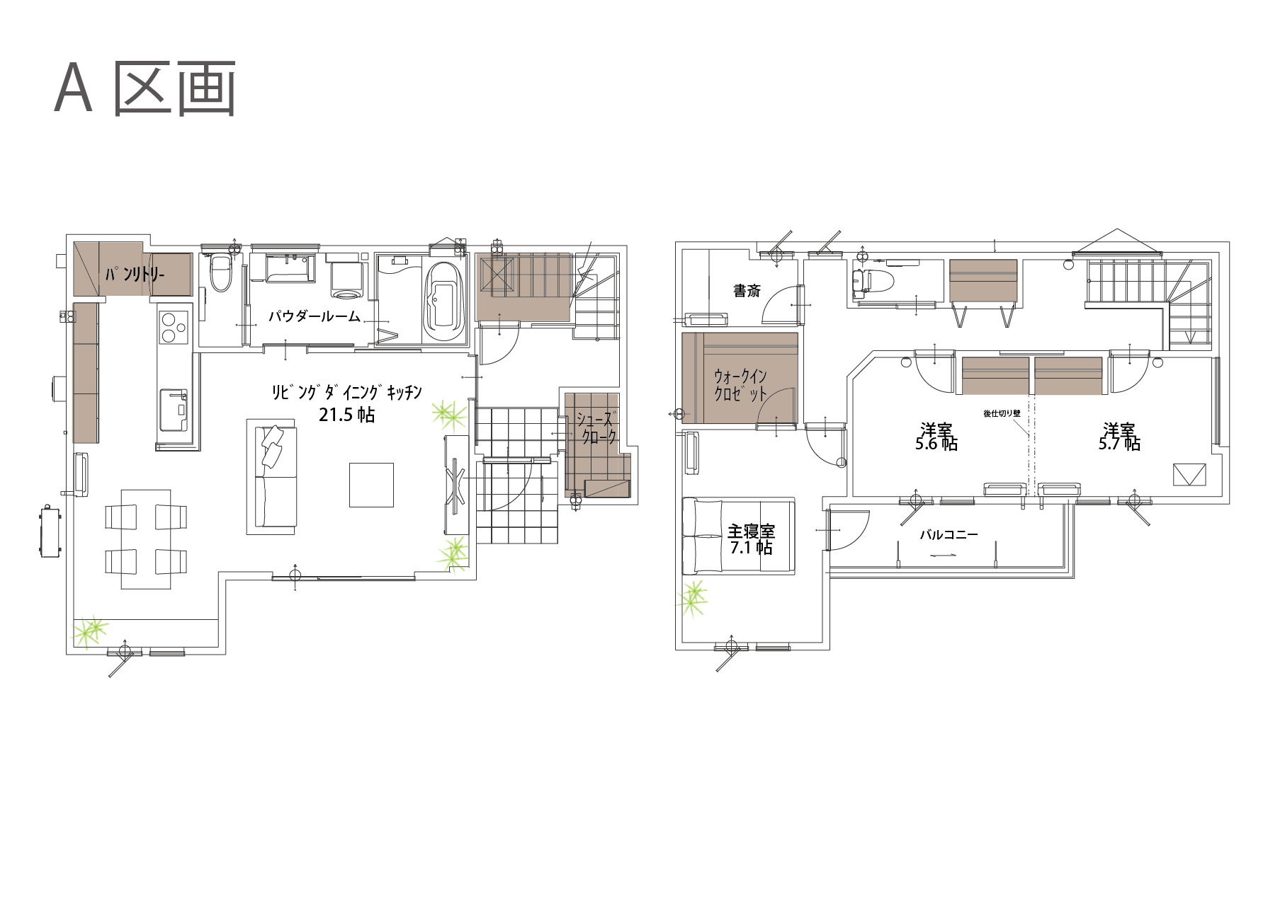
昭和町1期 A区画

群馬大学/前橋市役所/県庁/商業施設が徒歩圏内!日常生活に便利で、魅力的な住みやすい地域!

販売価格(税込)
3380万円

※リビングエアコン付・全室LED照明付・外構付き

敷地面積
172.69㎡
(52.23 坪)
延床面積
111.83㎡
(33.82 坪)
区画図
区画図
間取図
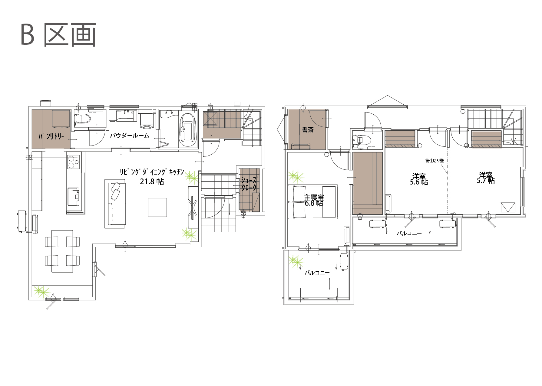
間取図

Resort Season
昭和町1期 B区画

販売価格(税込)
3380万円

※リビングエアコン付・全室LED照明付・外構付き

敷地面積
172.81㎡
(52.27 坪)
延床面積
109.28㎡
(33.05 坪)
区画図
区画図
間取図
間取図

物件概要

販売戸数
2戸
総戸数
2戸
所在地
群馬県前橋市昭和町1丁目11‐16
敷地面積
A:172.69㎡(52.23坪) B:172.81㎡(52.27坪)
延床面積
B:111.83㎡(33.82坪) C:109.28㎡(33.05坪)
間取り
3LDK+WIC+S
完成時期
2022年 2月
最寄り駅
前橋駅 2800m(車で9分)
駐車可能台数
3台(車種により)
構造・規模
木造2階建て
引渡予定時期
相談
建築確認番号
第SJK-KX215824470号他