新築分譲住宅

Resort Season緑町1期〈全2区画〉

ラスト1区画!17号近く!高崎問屋町駅まで徒歩19分!
国道すぐ!商業施設充実の緑町!お子様の成長に合わせ、可変性のある間取り!

MAP

交通機関
高崎問屋町駅
1700m(徒歩22分)
教育機関
浜尻小学校
950m(徒歩12分)
並榎中学校
1800m(徒歩23分)
商業施設
フレッセイ
1400m(徒歩18分)
セブンイレブン
219m(徒歩3分)
ドラッグストア
839m(徒歩11分)
ベルク
1500m(徒歩19分)

プラン

Resort Season
緑町1期 B区画

ラスト1区画!17号近く!高崎問屋町駅まで徒歩19分! 国道すぐ!商業施設充実の緑町!お子様の成長に合わせ、可変性のある間取り!

販売価格(税込)
3,430万円

※リビングエアコン付・全室LED照明付・外構付き

敷地面積
172.34㎡
(52.13 坪)
延床面積
118.43㎡
(35.82 坪)
区画図
区画図
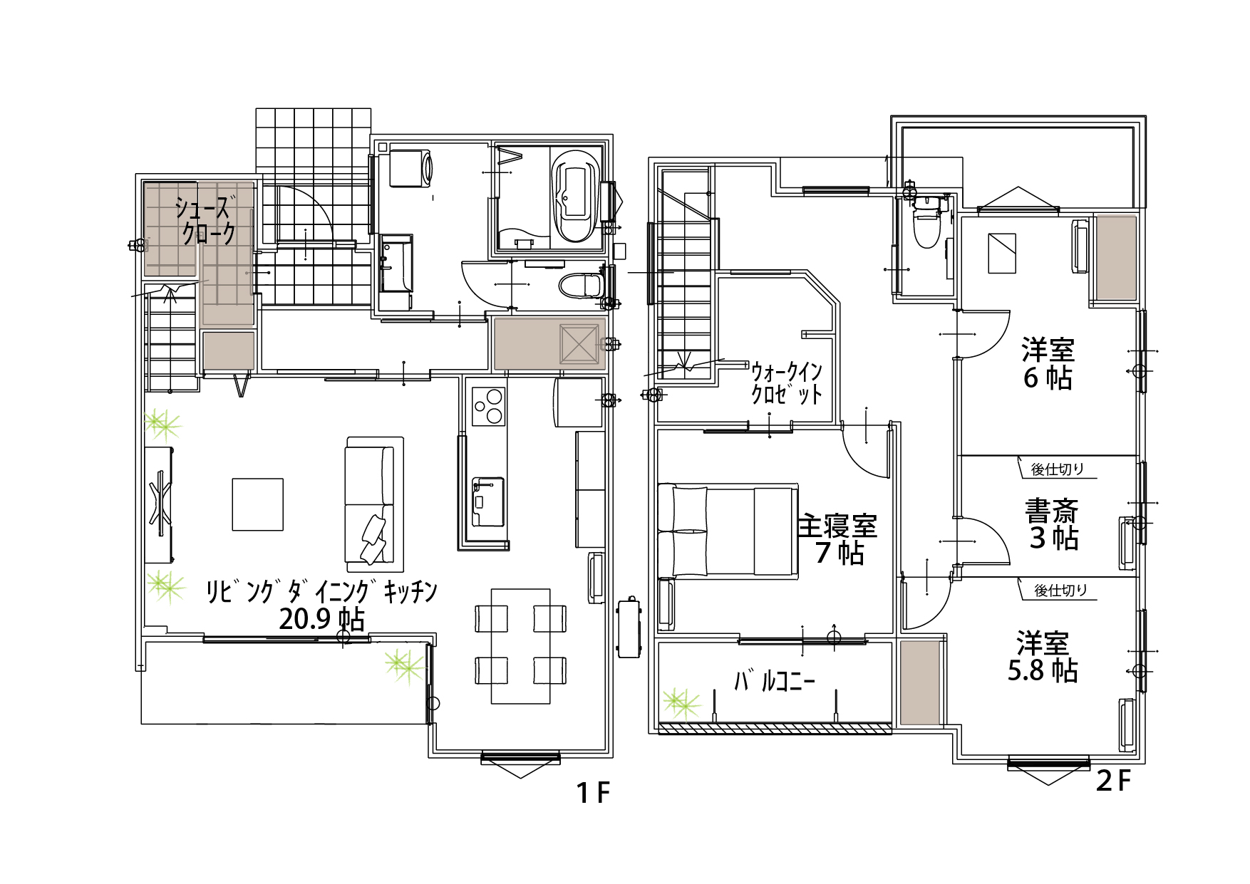
間取図
間取図

物件概要

販売戸数
1戸
総戸数
2戸
所在地
群馬県高崎市緑町3丁目5番7
敷地面積
B:166.97㎡(50.50坪)
延床面積
B:111.85㎡(33.83坪)
間取り
3LDK+WIC+S
完成時期
2022年1月頃
最寄り駅
高崎問屋町駅1700m(徒歩22分)
駐車可能台数
3台
構造・規模
​木造2階建て
引渡予定時期
相談
建築確認番号
SJK-KX215817630号