新築分譲住宅

Resort Season​飯塚町3期〈全4区画〉

全室にルームエアコン完備!塚沢小学校徒歩4分!塚沢中学校徒歩6分!高崎問屋町駅まで徒歩7分!ウニクス高崎/ベルク近く!

MAP

交通機関
高崎問屋町駅 
550m(徒歩7分)
教育機関
塚沢小学校
300m(徒歩4分)
塚沢中学校 
450m(徒歩6分)
商業施設
ベルク高崎日光店
500m(徒歩7分)
ウニクス高崎
1000m(徒歩13分)
マツモトキヨシ
500m(徒歩7分)
セブンイレブン高崎塚沢店
170m(徒歩3分)

プラン

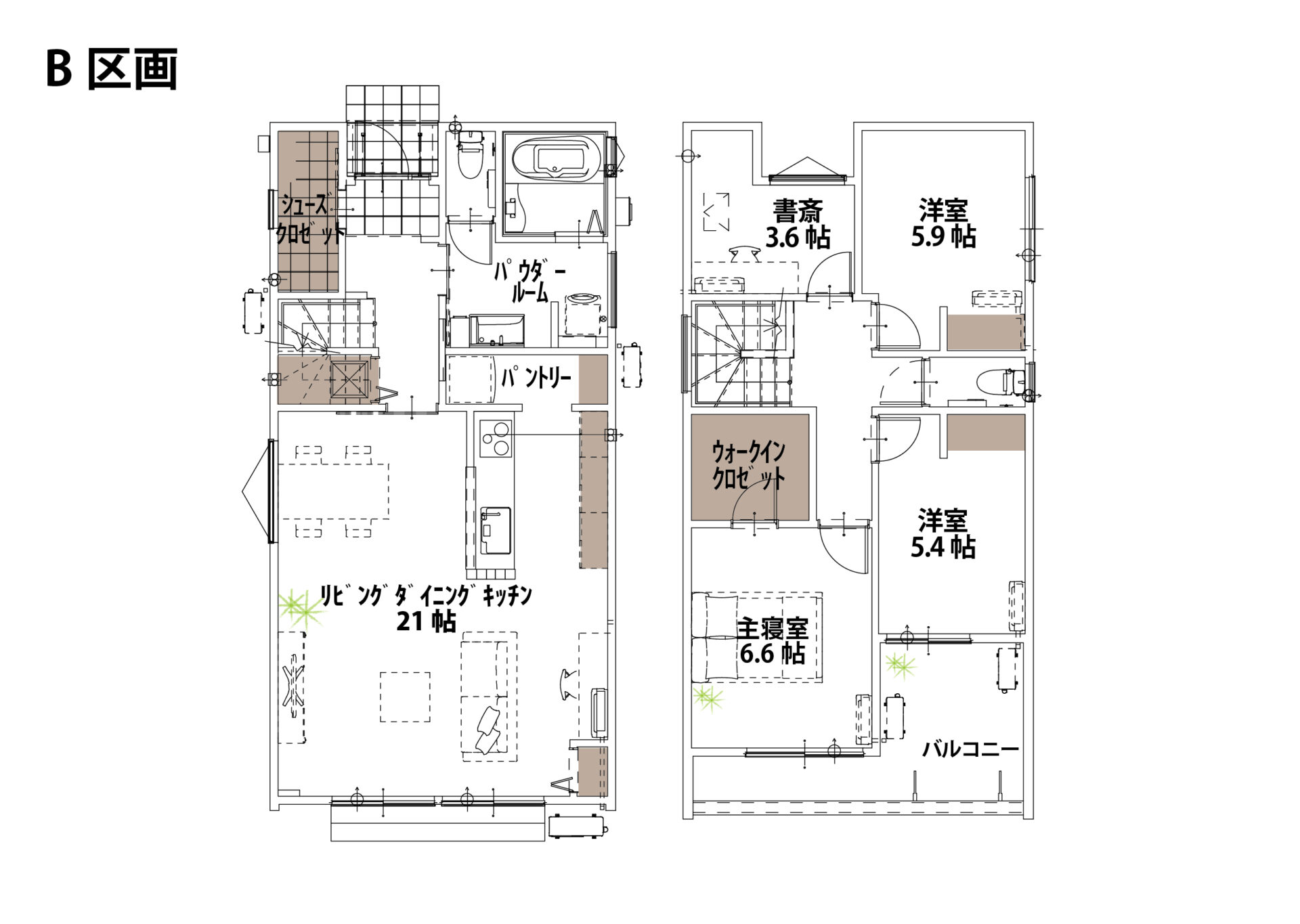
Resort Season
飯塚町3期 B区画

販売価格(税込)
3,480万円

※リビングエアコン付・全室LED照明付・外構付き

敷地面積
164.90㎡
(49.88坪 坪)
延床面積
106.45㎡
(32.20坪 坪)
区画図
区画図
間取図
間取図

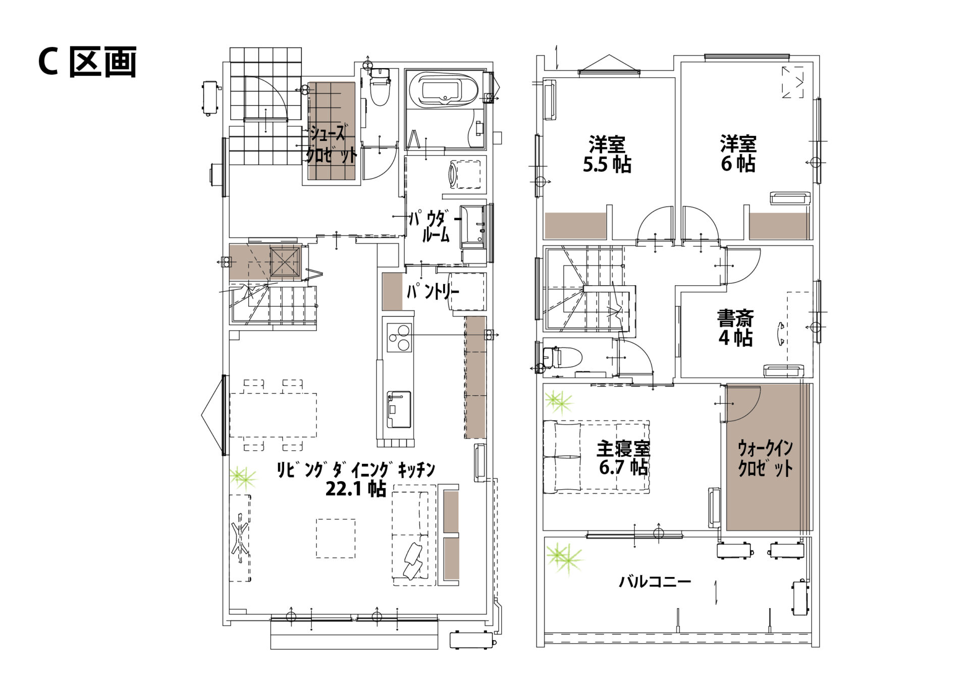
Resort Season
飯塚町3期 C区画

販売価格(税込)
3,480万円

※リビングエアコン付・全室LED照明付・外構付き

敷地面積
166.38㎡
(50.32坪 坪)
延床面積
110.31㎡
(33.36坪 坪)
区画図
区画図
間取図
間取図

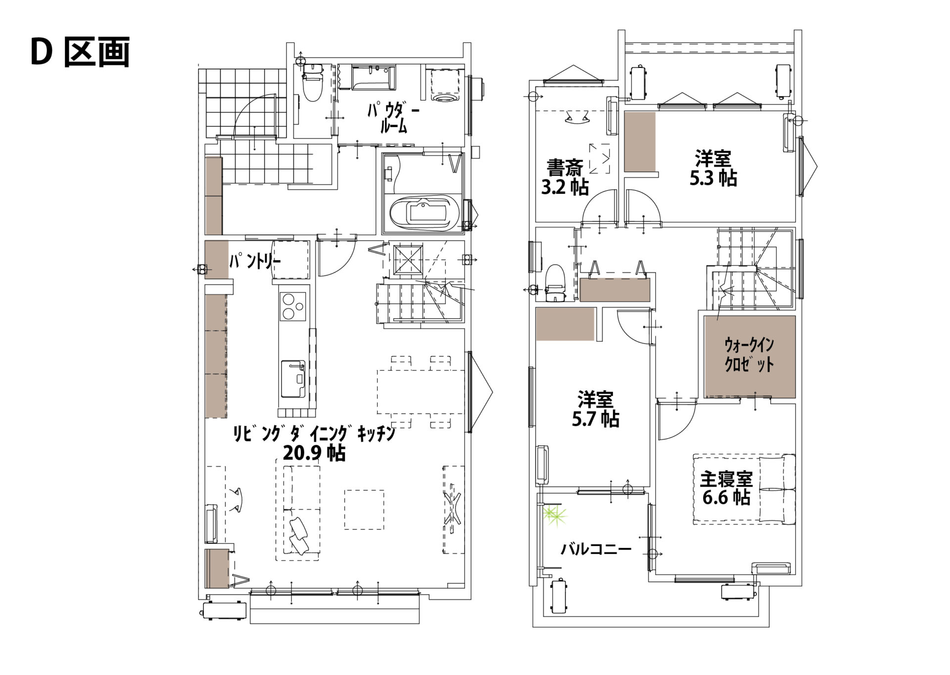
Resort Season
飯塚町3期 D区画

販売価格(税込)
3,530万円

※リビングエアコン付・全室LED照明付・外構付き

敷地面積
161.59㎡
(48.88坪 坪)
延床面積
107.07㎡
(32.38坪 坪)
区画図
区画図
間取図
間取図

物件概要

販売戸数
3戸
総戸数
4戸
所在地
群馬県高崎市飯塚町1543-6
敷地面積
161.59m2~ (48.88坪~)
延床面積
106.45m2~ (32.20坪~)
間取り
3LDK+WIC+S
完成時期
2022年3月予定
最寄り駅
高崎問屋町駅 550m(徒歩7分)
駐車可能台数
2台
構造・規模
​木造2階建て
引渡予定時期
相談
建築確認番号
第NKBI建-21RK0218V号他