新築分譲住宅

Resort Season​大利根町2期〈全2区画〉

それぞれ違うタイプの、中庭のある家。高崎IC、新前橋駅車で9分!住みよい大利根町に2期が登場!

MAP

交通機関
新前橋駅 
3200m(車で9分)
教育機関
大利根小学校
400m(徒歩5分)
箱田中学校 
950m(徒歩12分)
商業施設
ヤオコー前橋箱田店
1200m(徒歩15分)
フレッセイ大利根店
1400m(徒歩18分)
セイムス フレッセイ大利根店
1200m(徒歩15分)
セブンイレブン前橋箱田店
800m(徒歩10分)

プラン

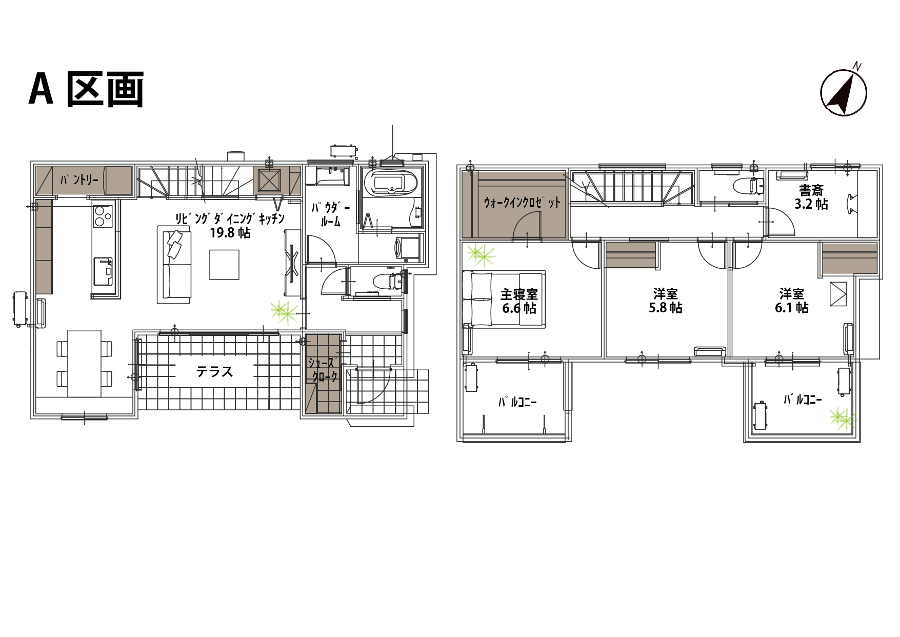
Resort Season
大利根町2期 A区画

それぞれ違うタイプの、中庭のある家。高崎IC、新前橋駅車で9分!住みよい大利根町に2期が登場!

販売価格(税込)
3,150万円

※リビングエアコン付・全室LED照明付・外構付き

敷地面積
155.96㎡
(47.17坪 坪)
延床面積
114.07㎡
(34.50坪 坪)
区画図
区画図
間取図
間取図

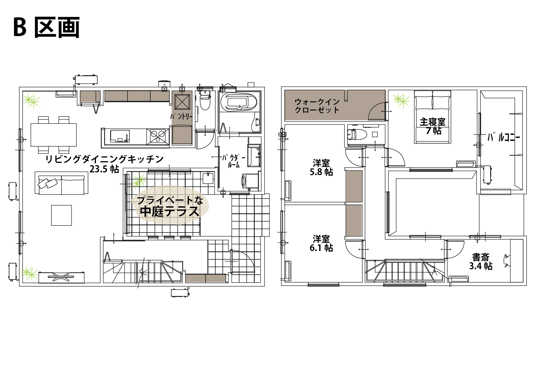
Resort Season
大利根町2期 B区画

販売価格(税込)
3,330万円

※リビングエアコン付・全室LED照明付・外構付き

敷地面積
170.27㎡
(51.50坪 坪)
延床面積
118.94㎡
(35.97坪 坪)
区画図
区画図
間取図
間取図

物件概要

販売戸数
2戸
総戸数
2戸
所在地
群馬県前橋市大利根町1丁目21-4
敷地面積
155.96m2~ (47.17坪~)
延床面積
114.07m2~ (34.50坪~)
間取り
3LDK+WIC+S
完成時期
2022年3月予定
最寄り駅
JR新前橋駅 3100m(車で9分)
駐車可能台数
3台
構造・規模
​木造2階建て
引渡予定時期
相談
建築確認番号
第SJK-KX215829540号他